
Bij een CPO-project bepalen bewoners zelf hoe hun woning eruitziet — nog voor de eerste steen is gelegd. Voor drie toekomstige bewoners van Cohousing Arnhem maakten we interieurontwerpen vanuit die bijzondere situatie. Het gebouw staat op de grens van stad en park, en elke bewoner had eigen wensen: een atelier, een werkplek, een open plattegrond. Zichtlijnen verbinden de ruimtes met het licht en het groen van het Coehoornpark.
Lees ook ons blog bericht, de bouw vordert!
Opdrachtgever particulier, 2021 – 2022
Bouw Cohousing: 2025 – 2026
https://cohousing-arnhem.nl/
Cohousing Arnhem
Bij Collectief Particulier Opdrachtgeverschap bepalen bewoners zelf hoe hun woning eruitziet. Niet als abstracte wens, maar als concrete keuze: welke ruimtes, in welke volgorde, met welk uitzicht. Dat vraagt om een ontwerper die luistert voor er iets getekend wordt.
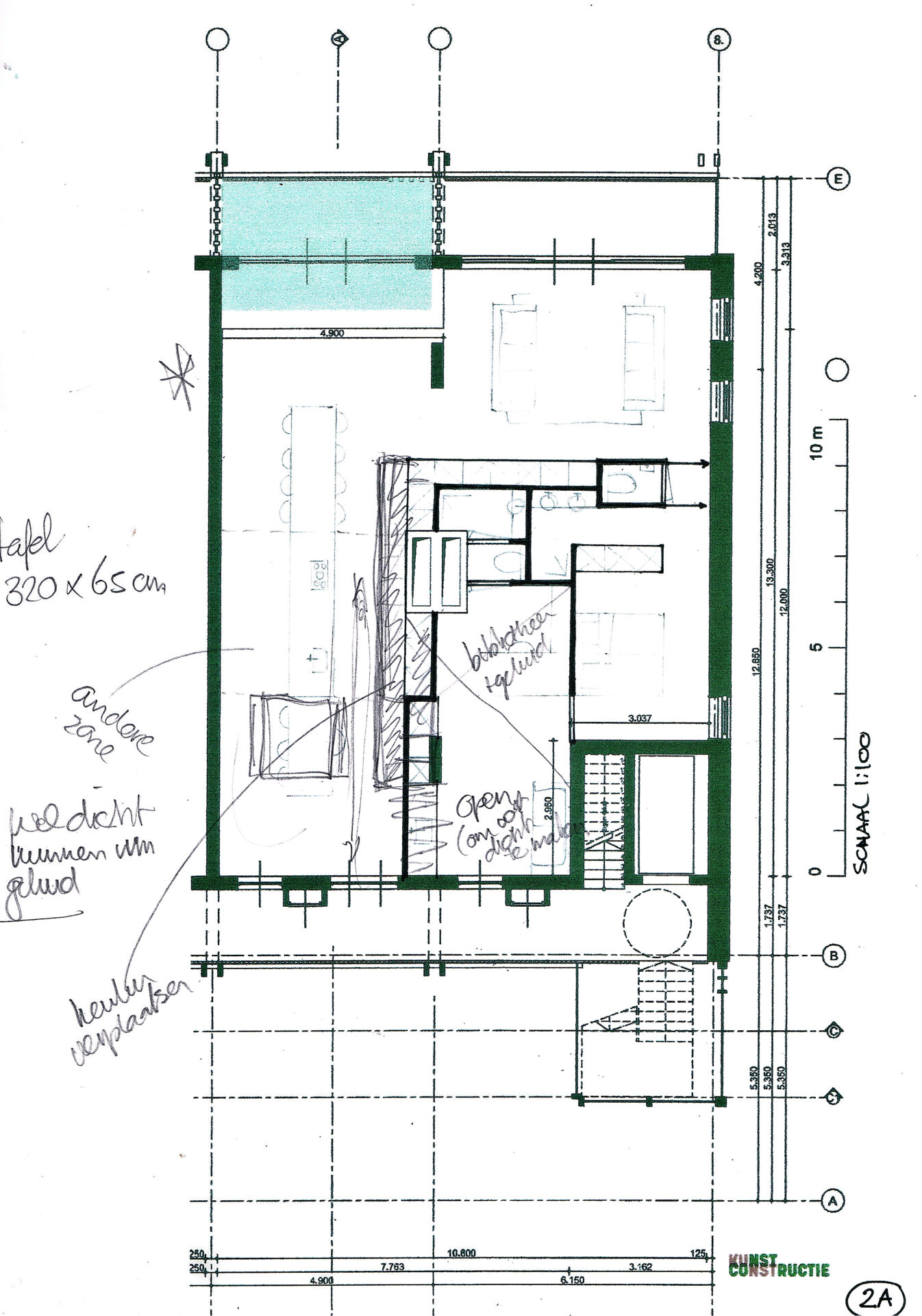
Voor drie toekomstige bewoners van Cohousing Arnhem ontwikkelden we interieurontwerpen die elk vertrekken vanuit een persoonlijk programma. Eén bewoner wilde de keuken aan de voorzijde, een ander juist aan de achterzijde. Een derde vroeg om een atelier. Dezelfde verdieping, dezelfde gevels — drie heel verschillende manieren van wonen.
Het gebouw staat op een bijzondere plek: aan de straatzijde een dove gevel die het geluid van het Nieuwe Plein keert, aan de andere kant het Coehoornpark waar alle appartementen op uitkijken. Die tweedeling — stad en park, geluid en groen — was het uitgangspunt voor de plattegronden.
Door zichtlijnen centraal te stellen ontstonden ruimtes waar je op meerdere plekken tegelijk naar voor én naar achter kijkt. Het park blijft zo aanwezig, niet als één raam op afstand, maar als iets wat je begeleidt terwijl je door de ruimte beweegt.
Het CPO-proces maakte dit mogelijk: omdat bewoners vroeg betrokken waren, konden wensen en ruimte elkaar echt vinden — nog voor de bouw begon.






